Продажа помещения свободного назначения

36 108 000 ₽

236 000 ₽ за м²

153 м²
Площадь
1/26
Этаж

Поделиться

Добавить в избранное

Помещение под МЕДЦЕНТР от ЗАСТРОЙЩИКА!
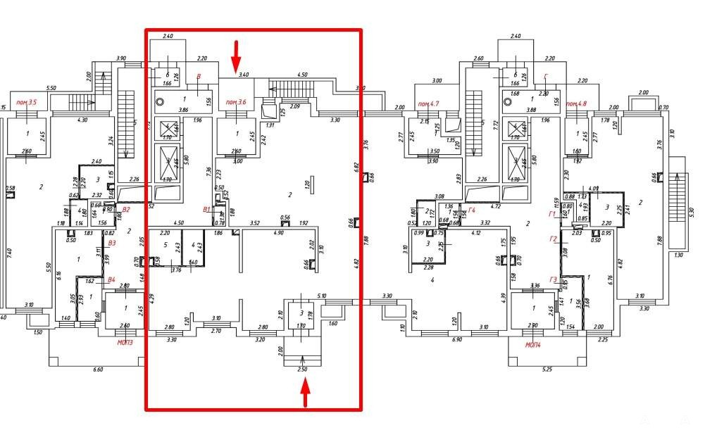
Продается помещение от Застройщика в густонаселенном UP - квартале "Сколковский". Помещение имеет 1 отдельный вход с улицы Сколковская, 1 вход со двора. Помещение расположено на входе/въезде в ЖК со стороны МКАД и трассы М-1. В 100 м от автобусной остановки, напротив перекрестка по ул. Чистяковой в сторону трассы М-1 и МКАД. Высокий пешеходный и автомобильный трафик. Напротив помещения есть 2 гостевых парковки. Высота потолков 3, 2 м, выделенная мощность - 0, 2кВт/ м2, состояние помещения - shell&core. заведены точки подключения к системам вентиляции, гвс/хвс, канализации. В помещении 5 больших витринных окон, предназначено под организацию поликлиники/мед. кабинета, под помещением - тех. этаж+кладовые.
ЖК сдан, 100% заселен. ЖК «Сколковский» расположен в 20 минутах ходьбы от станции МЦД D1 «Сколково», в 6 км от МКАД по Можайскому шоссе. Общее количеством квартир 7 500 шт. и населением более 10 000 человек.
Целевая продажа - под мед. услуги. Доступна беспроцентная рассрочка на 2 года, все подробности по телефону!

Дата обновления: 31 октября 2025